現在的人們對于高品質生活追求是十分向往的,當然你在裝修設計的時候可以安裝一套卡拉ok系統,這樣以后唱歌的時候,是非常方便的。周末約上三五個好友,在家一展歌喉,唱唱卡拉OK既緩解了平時的工作壓力也拉近了朋友間的感情,活躍了氣氛。在家裝一套家庭卡拉OK音響系統,閑暇的時候和家人或朋友唱唱歌已經成為一種時尚。該項目位于上海浦東大華珞斐墅別墅區的地下室獨立空間,下面我們一起來看看吧。

客戶申總是從事房地產行業的,本身朋友也比較多,之前去朋友家說他們都安裝了家庭影院和卡拉ok,現在自己更換新的房子了,也決定在新家里單獨弄個空間做卡拉OK,申總的一家人平時也都喜歡唱歌,因本小區房子是精裝修的別墅,申總也沒有過多的改動,當時通過朋友找到我們,我們也去實際現場勘測過,根據申總的要求出了個解決方案。

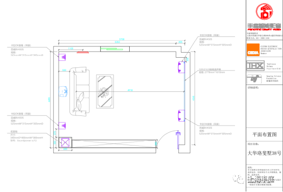
該空間總長度是5758mm,寬度是4495mm,長方形的空間,相對來說還是很理想的空間,因申總對于卡拉OK要求比較高,開始時,我們給他配置的是一對百威12寸的專業級音箱,在這個接近26個平方的空間使用也是綽綽有余,但申總的意思是在好聲音的情況下同時也要追求大的屏幕,因層高有限,若追求大屏幕的話12寸的專業級音箱無法放下,終我們給他以4只小體積的百威卡包音箱來解決。

在考慮到卡包音箱低音不是很足的情況下,我們又增加了一臺單獨的低音炮。為了能讓音箱發揮到應有的效果,使用了單獨的前后級,使唱歌更加的輕松。





10寸卡包音箱聲場強大,高水平的音質和穩定可靠的聲音輸出,把握了中音準、透,高音細、亮而不燥的準則。

點歌機內含大容量硬盤,超大屏幕的觸摸屏,無線、語音點歌給你便捷的體驗,二三十平米空間使用這套設備,效果完全不在話下,別墅地下室作為家的公共場所,力爭將家庭娛樂生活打造得更豐富多彩,讓您唱響音樂、娛樂K歌。
本案使用設備
卡拉ok音箱:美國Peavey百威BV450S
低音炮 :美國Soundpower聲威 KX-15BP
效果器 :美國Soundpower聲威 KX-1000P
功放:美國Soundpower聲威 MA 900P
大華諾斐墅家庭卡拉OK案例
作 者:上海豐庭電子科技有限公司
在的人們對于高品質生活追求是十分向往的,當然你在裝修設計的時候可以安裝一套卡拉ok系統,這樣以后唱歌的時候,是非常方便的。周末約上三五個好友,在家一展歌喉,唱唱卡拉OK既緩解了平時的工作壓力也拉近了朋友間的感情,活躍了氣氛。在家裝一套家庭卡拉OK音響系統,閑暇的時候和家人或朋友唱唱歌已經成為一種時尚。該項目位于上海浦東大華珞斐墅別墅區的地下室獨立空間,下面我們一起來看看吧。
掃描二維碼分享到微信