高端私家影院已經是別墅豪宅的標配,今天小編給大家介紹的案例在海南三亞清水灣,業主是一個成功的地產商,東北人,對生活方式有較高的要求,已經是第三套別墅找我們做定制影院設計了,想象一下,面朝大海春暖花開的場景,贊。
三亞作為全國旅游城市,有著得天獨厚的自然環境,藍天大海沙灘隨處可見,寒冷的冬天也有春天般的溫暖,是***的避寒圣地,話不多說,先來張照片。

業主的設計方是全國有名的李瑋珉設計事務所,此別墅的設計時間就畫了整整一年,私家影院這一塊我們也和設計方溝通了多次,***后結合業主要求,此空間必須滿足以下幾點
1、音頻效果上必須滿足現在主流的解碼方式,Dolby Atmos,DTS:X等,視頻上在投影距離和可視距離滿足的情況下,幕布盡量大,投影分辨率必須支持4K 。
2、外觀簡潔,要有影院的氛圍感,同時又不覺得單調,影院造型與燈光搭配非常注重。
3、聲效只須考慮純影院設計,卡拉OK設置在休閑區域,操控必須簡單。

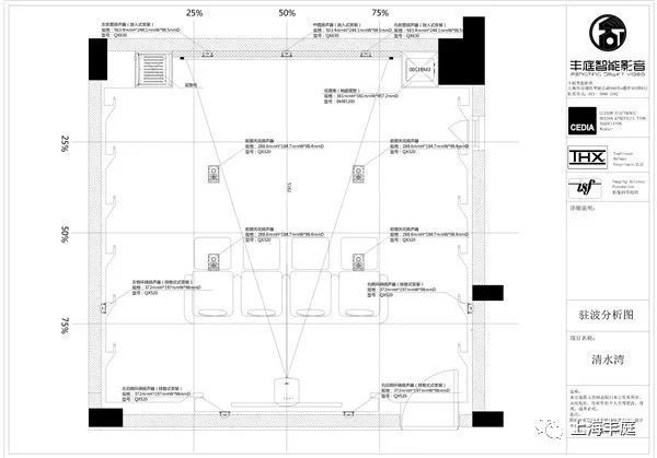
影音室35平方左右,5.9*5.95的正方形空間,正方形空間容易產生低頻駐波,通過前期的聲學測試,實測***次諧波,橫縱向駐波頻率在28-30HZ,56-60HZ,84-90HZ,112HZ-120HZ容易產生低頻駐波,為了讓低頻駐波點盡量避開人耳的敏感區域,我們墻面與頂面都做吸音與不規則設計處理。

為了滿足整體的簡潔性,所有揚聲器均嵌入式設計,皇帝位到幕布的的距離在4.7M,幕布按照150寸規劃,THX影院皇帝位聲壓級是105DB,考慮大動態效果的預留,還可以增幅10DB,按照目前的距離,以及我們推薦的功放與音響系統,皇帝位的聲壓級在110DB左右(聲壓級=音響靈敏度+10log功率-20log距離),完全滿足THX影院聲壓級要求。

從解碼方式上,我們綜合了Dolby Atmos與DTS:X沉浸式影院的擺放方式,兩者***融合為一體,無論您選用什么樣錄制方式的大片,系統都能輕松應對。


從裝修風格上,影音室都是經典的灰色系搭配原木色的地板設計,高端大氣又不失穩重,墻面與頂面灰色系搭配,對投影的畫面效果增強也極好,不易反光,為了不顯單調,錯層采用反光燈槽設計,更有科技感與體驗感
設備柜與低音炮屏幕左右放置,考慮到系統的正常工作以及散熱,開門均采用同色系透聲布制作而成。由于業主平時出差也比較多,考慮到一家人操控的方便性,影院均采用美國Control4智能控制系統。

主人還為自己別墅匹配了美國SONOS高保證的背景音樂系統,躺在自家游泳池上,面朝藍天大海,游泳休閑聽首自 己喜歡的音樂放松,想想都蠻享受的。

JAMeS***影院相對而言,確實不便宜的,什么樣的人住什么樣的房,什么樣的人消費什么樣的產品,產品本身沒有***的好壞,適合你的就是***好的,完工后,設計方和業主都對效果稱贊,我們采集的房間聲學數據在0.3S左右,完全滿足THX要求,聲音因人而異,仁者見仁智者見智,數據是不會造價的。

私家影院系統:
信號源:艾美 MS-300影庫播放器
視頻設備:EPSON TW-8400高清4K投影機
韋佰羅倫150寸畫框透聲幕布
音頻設備:美國JAMES ***影院QX系列
Dolby Atmos 7.1.4&DTS:X 7.1.4
日本DENON AVR-X6500 前級解碼器
美國Earthquake大地震Cinenova7后級放大器
智能控制系統:美國Control4一鍵式影院智控
背景音樂系統:美國SONOS AMP&加拿大Paradigm PV-50R
喜歡大家就關注一下哦
三亞清水灣別墅影院案例
作 者:豐庭智能
1、音頻效果上必須滿足現在主流的解碼方式,Dolby Atmos,DTS:X等,視頻上在投影距離和可視距離滿足的情況下,幕布盡量大,投影分辨率必須支持4K 。
2、外觀簡潔,要有影院的氛圍感,同時又不覺得單調,影院造型與燈光搭配非常注重。
3、聲效只須考慮純影院設計,卡拉OK設置在休閑區域,操控必須簡單。
掃描二維碼分享到微信